Conseil en immobilier depuis 1986
Société Bureaux Commerces Activités/Entrepôts Habitation Actualités Contact

Locaux d'activité

2 525 m² non divisibles - À VENDRE
Réf. 2141710 - 92230

GENNEVILLIERS

Disponibilité :

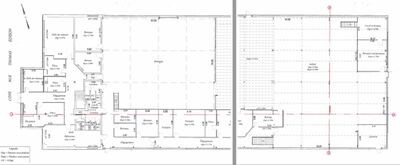
Description

EXCLUSIVITE. À Gennevilliers (92230) Bâtiment indépendant d'activité de 2 525 m² à vendre. Idéalement situé, à proximité des axes autoroutiers (A15 / A86 / N315) et des transports en commun (RER C / Tramway T1). Ce site clos et sécurisé avec giration possible autour du bâtiment, propose des bureaux et ateliers climatisés, un système d'air comprimé et des prestations de très bonne qualité.

Surface

2 525 m² non divisibles

Prestations

Immeuble indépendant Parcelle AM 181 de 3015 m² Site clos et sécurisé (Portail automatisé & Système de vidéo surveillance) Ossature métallique / Bardage double peau Couverture bac acier Charge au sol : 3.5T/m² (Activité/Stockage) et entre 250 et 300 kg/m² (Mezzanine) HSP entre 5 et 6 mètres 1 porte sectionnelle plain-pied (2.82 (L) x 2.65 (H) Puissance électrique 36 kva Aérotherme Gaz (Partie Activité) Climatisation (Stockage/Atelier) Système d'air comprimé centralisé (sous et sur Mezzanine) Cuve de récupération des eaux usées (1/3) et Tout à l'égoût (2/3) 1 borne IRVE / 1 place PMR Accueil / Réfectoire Bureaux équipés de Climatisation réversible

Accessibilité

Moulin de Cage (166, RIVER) Gennevilliers (C) Parc des Chanteraines (T1) Gennevilliers (Gare SNCF) Les Grésillons (L15 Horizon 2030) A 15, A 86 (Entrée), A 15 (Sortie), A 86 (Sortie A86 St-Denis)
Tableau des surfaces
RECEVOIR UN DOSSIER
PARTAGER
ALERTES SUR BIENS SIMILAIRES
Laisser un message
Votre conseil
Jacques GOZLAN
Annonces similaires
Retour à l'annonce
Société| Propriétaires| Actualités| Informations légales| Lexique| Contact

 

Siège social : 48 rue de Bassano - 75008 Paris - Tél. : 01 40 70 00 98
Société à Responsabilité Limitée au capital de 77 000 € - SIREN : 338 503 113 - RCS Paris - Code NAF 6831Z - Carte professionnelle : CPI 7501 2016 000 006 349 sans perception de fonds, transactions sur immeubles et fonds de commerce. APE 6831Z
N° TVA intracommunautaire : FR55 338503113

Location de bureaux - Location de locaux commerciaux - Location de boutique - Location de locaux d'activité - Location d'entrepôt - Location d'habitations -
Vente de bureaux - Vente de locaux commerciaux - Vente de boutique - Vente de locaux d'activité - Vente d'entrepôt - Vente d'habitations -
Contactez nous