Conseil en immobilier depuis 1986
Société Bureaux Commerces Activités/Entrepôts Habitation Actualités Contact

Appartement

37m² - À VENDRE
Réf. 2158548 - 75012

PARIS

Disponibilité : immédiate

Description

Surface

37m²

Prestations

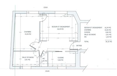
Appartement à vendre Paris 12 PRIMM vous propose à la location un beau deux pièces d'une surface de 36,32m², très fonctionnel, agréable et entièrement rénové. - Lumineux - Surface rationnelle et optimisée - Cuisine - Chauffage électrique - Belle salle d'eau - Une chambre de bonne taille avec un grand placard - Parquet massif poncé et vitrifié - Bonne hauteur sous plafond - Traversant donnant sur cours intérieures DPE en cours de détermination

Accessibilité

Bel Air (BUSM6), Hôpital Rothschild (29, 71), Picpus - Reuilly (64) Daumesnil (8), Bel-Air (6) Nation (A) Paris-Bercy Bourgogne - Pays d'Auvergne (TER) A 3, A 4 (Entrée), A 3, A 4 (Sortie) Port de Paris (Fluvial - Fret) Porte de Saint-Mandé (Entrée) (Périphérique Paris) PICPUS NATION (Parking) Paris | boulevard de Picpus 7 (Bornes de recharge)
Tableau des surfaces
RECEVOIR UN DOSSIER
PARTAGER
ALERTES SUR BIENS SIMILAIRES
Laisser un message
Votre conseil
Jonas GOZLAN
Annonces similaires
à Vendre

Habitation

102m²
22370

PLENEUF VAL ANDRE

La Résidence Jacques Cartier, située à Pléneuf Val André, est composée de 18 appartements, et de 29 places de stationnements en sous- sol.
Réf 1332521
à Vendre

Habitation

120m²
22370

PLENEUF VAL ANDRE

Immeuble neuf , " Résidence Jacques Cartier", située à Pléneuf Val André, est composée de 18 appartements, et de 29 places de stationnements en sous- sol.
Réf 1332535
VEFA

Habitation

1520 m²
22370

PLENEUF VAL ANDRE

Immeuble en état futur d'achèvement (VEFA) d'une surface totale de 1520 m² La Résidence Jacques Cartier, située à Pléneuf Val André, est composée de 18 appartements, et de 29 places de stationnements en sous- sol.
Réf 1057819
Retour à l'annonce
Société| Propriétaires| Actualités| Informations légales| Lexique| Contact

 

Siège social : 48 rue de Bassano - 75008 Paris - Tél. : 01 40 70 00 98
Société à Responsabilité Limitée au capital de 77 000 € - SIREN : 338 503 113 - RCS Paris - Code NAF 6831Z - Carte professionnelle : CPI 7501 2016 000 006 349 sans perception de fonds, transactions sur immeubles et fonds de commerce. APE 6831Z
N° TVA intracommunautaire : FR55 338503113

Location de bureaux - Location de locaux commerciaux - Location de boutique - Location de locaux d'activité - Location d'entrepôt - Location d'habitations -
Vente de bureaux - Vente de locaux commerciaux - Vente de boutique - Vente de locaux d'activité - Vente d'entrepôt - Vente d'habitations -
Contactez nous